בית המגורים Wall House 2 ב־Groningen הוא אחד הפרויקטים המסקרנים והחריגים של האדריכל John Hejduk – רעיון תיאורטי שהמתין כמעט שלושה עשורים עד שהתממש לבסוף, לאחר מותו, בשנת 2001.

הפרויקט, שתוכנן במקור בתחילת שנות ה־70 עבור אתר ב־Ridgefield, לא נבנה בשל עלויות גבוהות. רק שנים מאוחר יותר הוא זכה לחיים חדשים בהולנד, בביצועם של Thomas Müller / Ivan Raimann Architekten ו־Otonomo Architecten, ששמרו בקפידה על הרעיון המקורי תוך התאמתו למציאות עכשווית.
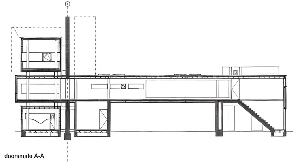
בלב הבית ניצב קיר בטון חופשי – אלמנט מונומנטלי שאינו נושא עומס, אלא פועל כסמן רעיוני. הקיר אינו סוגר חלל, אלא מגדיר חוויה: מעבר. כדי לנוע בין חלקי הבית יש “לחצות” אותו, פעולה שהופכת את התנועה עצמה לאקט אדריכלי מודע של מעבר בין מצבים.

 

 

החללים עצמם מפורקים לצורות נפרדות: נפחים מעוגלים המכילים חדר שינה, סלון ופינת אוכל נערמים זה מעל זה לצד הקיר, בעוד מסדרון אופקי מוביל לחלל עבודה נפרד. במקום בית כיחידה אחת, מתקבלת קומפוזיציה של אובייקטים – כמעט ציור תלת־ממדי.
הפער בין מראה למבנה מדגיש את הרעיון: אף שהנפחים נראים כאילו הם נתמכים בקיר, בפועל הם נשענים על גריד עמודים. כך הקיר נשאר אלמנט סימבולי – גבול, סף, רעיון – ולא קונסטרוקציה.
החומריות ממשיכה את הדואליות הזו: בטון חשוף וכבד לצד פלדה, עץ וטיח קלים יותר, יוצרים מתח בין מסה לאווריריות. השפעות של Le Corbusier ניכרות בצבע ובקומפוזיציה, לצד השראות מעולמות הקוביזם והסוריאליזם – תרגום של מחשבה דו־ממדית לאובייקט בנוי.
מעבר להיותו בית, Wall House 2 מתפקד גם כמרחב תרבותי, מארח אמנים ומבקרים, וממשיך לחקור את הרעיונות שעליהם נבנה. זהו פרויקט שמוכיח כיצד אדריכלות יכולה לחרוג מגבולות זמן, מקום ואפילו מחבר – ולהישאר רלוונטית כרעיון חי.

 

 

Wall House 2
John Hejduk, Thomas Muller/van Raimann Architekten & Otonomo Architecten
Architects: John Hejduk; Thomas Müller / Ivan Raimann Architekten; Otonomo Architecten
Photography: Liao Yusheng, Gili Merin, Wenkbrauwalbatros
Client: A. E. Bye (original); later developed by Groningen municipality and Wilma BV
City: Groningen
Country: Netherlands

 

 

 

 

 

 

 

 

 

 

 

 

 

 

 

 

לכל הכתבות בקטגוריית אדריכלות
+כתבות מומלצות
וילה מרחפת: בין מסורת גולמית לצורה גיאומטרית מדויקת
אדריכלות
וילה מרחפת: בין מסורת גולמית לצורה גיאומטרית מדויקת
  ההרמה הזו לא רק מייצרת מחווה פיסולית, אלא גם חלל שימושי: אזור מוצל
לבן, ירוק וטרופי: הבית המקסיקני שמחבר בין עבר להווה
אדריכלות
לבן, ירוק וטרופי: הבית המקסיקני שמחבר בין עבר להווה
  ארגון מחדש כבסיס לחיים חדשים נקודת המוצא הייתה תכנית מורכבת ומיושנת, עם חללים
איך הם עשו את זה: 7 פתרונות יצירתיים לאתגרים אדריכליים מורכבים
אדריכלות
איך הם עשו את זה: 7 פתרונות יצירתיים לאתגרים אדריכליים מורכבים
    מרפסת שהיא גם בפנים וגם בחוץ בבית שתכננו האדריכלים Miroslava Brooks ו-Daniel

כתיבת תגובה

הוספת תגובה חדשה, האימייל לא יוצג באתר*


The reCAPTCHA verification period has expired. Please reload the page.