בית הספר למוזיקה בקמפוס הקריה האקדמית, מהווה חלק מתכנית אב רב שלבית, הקובעת יתדות להתפתחות עתידית של הקמפוס. הקמפוס הנוכחי מתאפיין בבניין מרכזי שהיה בנין המתנ"ס העירוני, אליו צורפו עם התפתחות הקמפוס מבנים קלים, אשר יצרו מתחם ספורדי אך עם איכויות ביתיות. במסגרת תהליך שהחל לפני כשמונה שנים, בו הוחלט על תכנון עתידי מוסדר לקמפוס, נעשתה תכנית רב שלבית הקובעת את עקרונות ההתפתחות כקמפוס ליניארי אשר יבנה בשלבים.


בשלב הראשון בקצה הליניאר נבנה ביה"ס למינהל עסקים, תוך ניצול אלמנטים מתועשים שהיו בידי הקמפוס ושילובם בבניה קונבנציונלית, לכדי בנין אחוד בגודל של 5000 מ"ר. בשלב השני נבנה ביה"ס למוזיקה בקצה הליניאר הנגדי לביה"ס למינהל עסקים כך נוצרה הגדרת הגבולות לקמפוס. המבנה מבקש למלא מספר תפקידים מעבר להיותו ביה"ס למוזיקה.
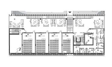
מיקום המבנה מייצר חיבור עם המבנים האחרים לכדי חצר פנימית – הקמפוס. המבנה משמש שער כניסה לקמפוס, תוך ניצול הפרשי מפלסים בינו לבין הרחוב. עירוב השימושים במבנה המשמש הן ככניסה והן כבית ספר למוזיקה, מאפשר אינטראקציות בין כלל הסטודנטים משאר הפקולטות לבין תלמידי המוזיקה. פירוק המבנה תוך ניצול תוואי הקרקע, מייצר מצבים חדשים בקמפוס, המאפשרים הגברת הקשר החוצה עם הקהילה ושיתוף חברתי בין הסטודנטים בחללים סמי ציבוריים מוגנים, משמש וגשם ישירים ובעלי אופי של חצרות.
שיטת הבניה הינה שילוב של בניה קונבנציונלית ובניה מתועשת, על מנת לצמצם את זמן הבניה ואת חשיפת הקמפוס הפעיל להפרעות הצפויות מתהליך הבניה. חומרי הבניה שנבחרו לבנין נותנים מענה לשחיקה המוגברת הצפויה בבנין. ביניהם בטון אדריכלי באלמנטי הקצה, טיח פרסקו גס ועדין בגמר הקירות, אריחי בזלת ברצפה, מסגרות ומעקות בגמר ברזל מוחלד ושערי כניסה מפח קורטן הינם חלק המבנה הוא בעל ביטוי צורני רב משמעות וסדר מתמטי כיאה לשפה המוזיקלית, כמו כן מאפשר לראות את הפעילויות השונות שבו ולצפות ממנו על החיים בקמפוס. המבנה הופך למטרונום המתווה את הקצב לחיי הקמפוס. בשלבים הבאים בבניית הקמפוס יבנו מבנים אשר יעבו את הבינוי הקיים תוך שמירה על הרקמה המדביאלית המייצרת קמפוס בעל אופי אינטימי המחבר חלקים מופנמים ומוחצנים לכדי ישות אחת בעלת פנים רבות ומגוונות המייצרת עושר חוויתי בקנה מידה אנושי.



משרד גל-אור פישביין אדריכלים
ייעוץ תלת מימדי – רונן בקרמן
הדמיות- סטודיו 84
אדריכלים אחראים- עדי פקט, עמית שני.

תגובה אחת
היי, האם יש לכם תצלום של הבניין המקורי?