סטודיו Wutopia Lab השלים ב־2024 את The Rock – מרכז ספורט ונופש במתחם מעיינות חמים בזונחואה, מחוז הביי שבסין. המבנה, הממוקם בנקודה הגבוהה בעיירת הנופש ומשקיף אל החומה הסינית, תוכנן כ“סלע מרחף” הבולט מקצה מצוק – בהשראת מוטיב ה“סלע המעופף” מהנוף המסורתי הסיני.
הפרויקט מבוסס על רעיון של “דה־אדריכלות” – טשטוש המחווה הצורנית לטובת חוויה חללית שבה האור הוא הגיבור המרכזי. חלון גג בשטח 26 מ"ר וחזית צפונית מזוגגת מחדירים אור טבעי רך אל חלל בריכה מרכזי בגובה תשעה מטרים, ויוצרים השתקפויות המדמות אדוות גם על קירות ותקרות בגוון אפור־לבן אחיד, המדמים מערה מופשטת.
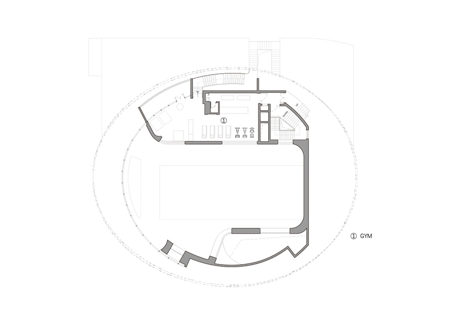
המרכז משתרע על פני שלוש קומות: קומת קרקע עם לובי וחללים טכניים; קומה שנייה הכוללת בריכה מרכזית, בריכות ילדים וחוץ וחדרי הלבשה; וקומה שלישית עם חדר כושר. רמפה ספירלית מטפסת על הגג ומאפשרת תצפית פנורמית על הנוף ההררי.
המעטפת המתכתית עוטפת ליבה פנימית מבודדת ואטומה למים, בעוד שטחי השירות – כ־900 מ"ר – נטמעים בתוך ההר כדי לשמור על קלילות חזותית. האתגרים ההנדסיים כללו איטום מורכב, תיאום מערכות ותכנון באזור סייסמי בדרגה 8.
התוצאה היא מבנה איקוני המשמש ציון דרך לעיירה – סלע אדריכלי שבו טבע, אור וטכנולוגיה מתלכדים לחוויית מרחב ייחודית.
Architects
Wutopia Lab. Chief Architect.- YU Ting. Project Architect.- Liran SUN
Project team
PAN Dali, KUANG Zhou, MU Zhilin, XIONG Jiaxing, ZENG Rui (Intern), ZHANG Naiyue (Intern)
Area
1,690 square meters
Dates
May 2020 – December 2024
Location
Zunhua, Hebei, China
Photography
LIU Guowei (Daily Architectural Photography)






























