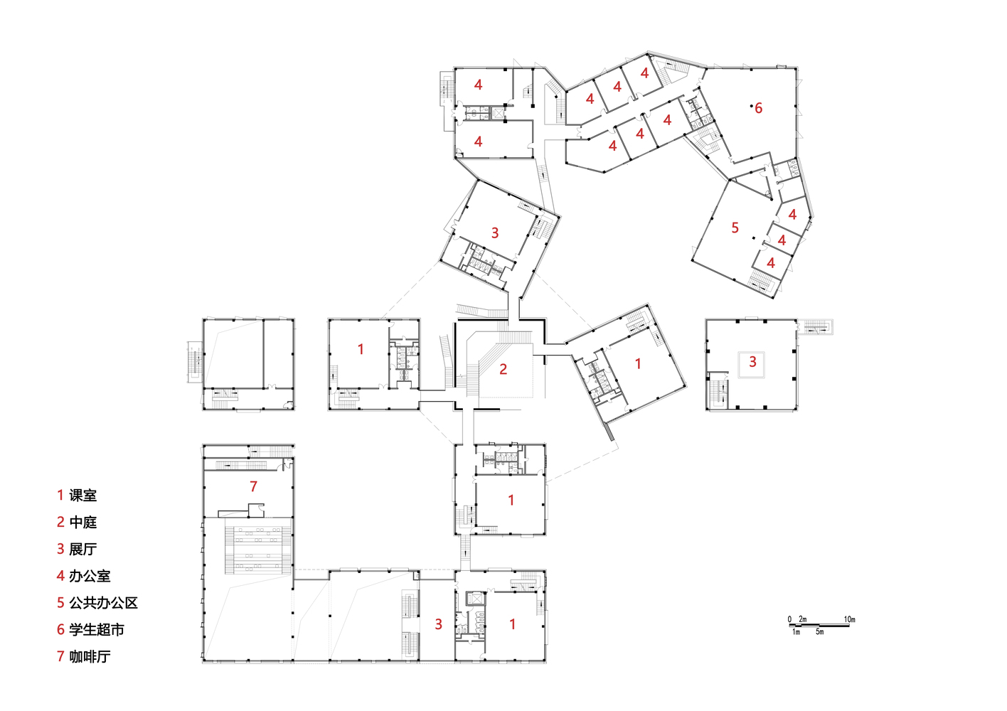
בקמפוס האוניברסיטה של בייג'ינג בז'והאי (BNU Zhuhai), ניצב מתחם יואנבו אשר שופץ כך שהוא יוצר אזורי אינטראקציה מגוונים, תומך במודל החינוכי של בית הספר לעיצוב עתידי, תוך התמקדות בחיבור בין אנשים, טבע ואינטראקציה.

Architects: THAD
Area:
13762 m²
Year:
2021
Photographs:Wu Qingshan, Zhan Changheng
Architecture Design: Zhang Wei, Zhao Jingxian, Huang Haiyang, Wang Yue, Li Xiangyi, Zhang Xiaoqian, Cai Mingcheng, Zhang Yuben, LI Ruoxing, LI Shiqi












לכל הכתבות בקטגוריית אדריכלות
+כתבות מומלצות
