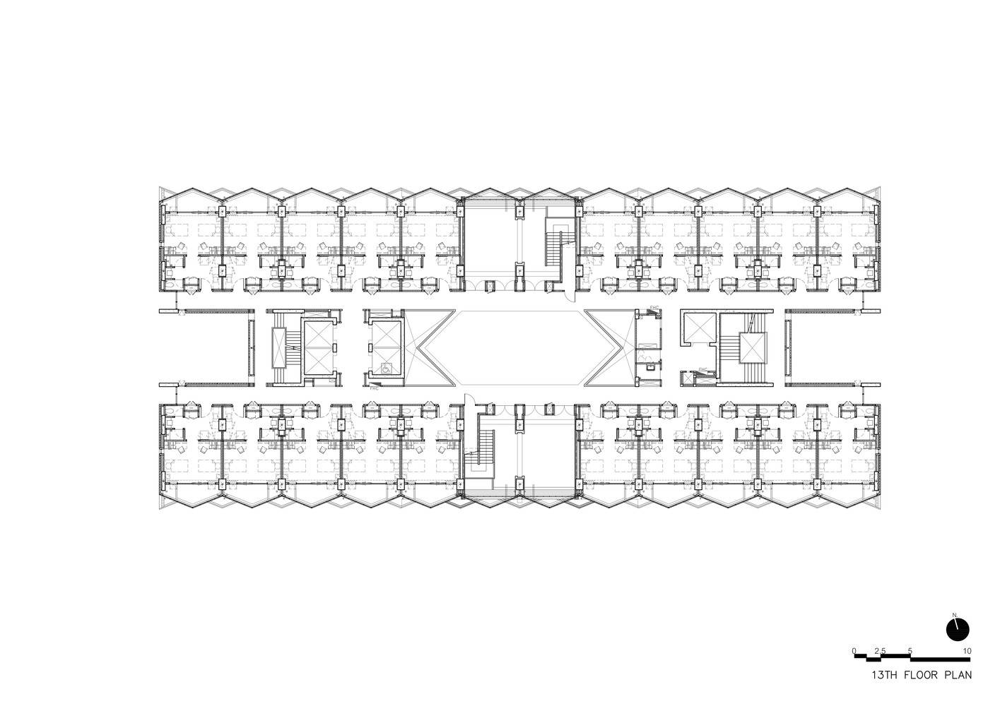
משרד האדריכלים Plan Architect, תכנן בית מעונות לאחיות בן 26 קומות, בבית החולים Chulalongkorn Memorial, בבנגקוק, המופעל על ידי הצלב האדום התאילנדי. בית המעונות מכיל 523 חדרים, כל אחד לשתי דיירות, יחד עם ספרייה, מזנון, חדר כביסה וחדר רב תכליתי.

 

המבנה שנבנה בשנת 2021, באזור Khet Pathum Wan, בבנקוק שבתאילנד, מכיל 32,000 מ"ר בנויים. התכנון שומר על אינטימיות ורגיעה לאחיות העובדות, יחד עם חצר סגורה, פארק על הגג ומרפסת ירוקה מרכזית, הרחק מהסביבה ההומה של בית החולים. על ידי הפרדת הבניין לשני אגפים עם פיר אוורור מרכזי, העיצוב מבטיח אוורור טבעי לכל אורכו ומפחית את הצורך במיזוג אוויר.
מרפסות הזיגזג נועדו אף הם לשמירה על הפרטיות ומספקות חללים פונקציונליים לייבוש בגדים.

מעונות האחיות בבית החולים Chulalongkorn Memorial
Photographs :Panoramic Studio
Lead Architects: Nitisak Chobdamrongtham, Apichai Apichatanon, Wara Jithpratugs, Naphasorn Kiatwinyoo, Nathida Sornchumni
Landscape: PL Design

 

 

 

 

 

 

 

 

 

 

 

 

 

 

 

לכל הכתבות בקטגוריית אדריכלות
+כתבות מומלצות
בית שמרחף בין העצים בברזיל
אדריכלות
בית שמרחף בין העצים בברזיל
  בלב הנוף הירוק של Nova Lima, בתוך יער אטלנטי צפוף ועשיר בצמחייה ובחיות
הלודג' בתוך הטבע ומתארחים בו לצד זברות וג'ירפות
אדריכלות
הלודג' בתוך הטבע ומתארחים בו לצד זברות וג'ירפות
  על רקע המרחבים הפתוחים של Free State, בתוך אזור Vredefort Dome בדרום אפריקה
ספרייה קהילתית שנפתחת כמו צדף
אדריכלות
ספרייה קהילתית שנפתחת כמו צדף
  בלב מתחם Shine Hills ב־Beijing, תכנן משרד LUO Studio ביתן ספרים קהילתי יוצא

כתיבת תגובה

הוספת תגובה חדשה, האימייל לא יוצג באתר*


The reCAPTCHA verification period has expired. Please reload the page.