בברצלונה יש מבנים המספרים את ההיסטוריה של העיר, דרך החזיתות והמבנים שלהם, אחד מהם הוא The Sayrach House, בניין מודרניסטי מפואר השוכן בשדרות 423 Diagonal Avenue, המוגדר כאנדרטה ההיסטורית. עיצוב משרד ההנהלה של המבנה, יצר שילוב מרתק של ישן וחדש, המחבר פער סגנוני מאה שנה, בצורה הרמונית.

בנה אותו Manuel Sayrach בשנת 1918. זהו הבניין מודרניסטי המייצג את אחת הדוגמאות האחרונות לסגנון בכל ברצלונה. החזית שלו, עם צורות אורגניות ומעוקלות, משקפת את השפעתם של מאסטרים גדולים של המודרניזם כמו אנטוני גאודי. עם זאת, הוא מסמן גם את המעבר לנוסנטיזם, ברגע של אבולוציה בתנועה האדריכלית.
העיצוב הוא אודה לקטלוניה, עם אלמנטים שנותנים כבוד לארץ ולתרבות הקטלאנית, בלי לשכוח פונקציונליות, כשהוא משלב אוורור ותאורה טבעית בחללים הפנימיים.


בשנת 2020, הסטודיו External Reference, של האדריכל האיטלקי Carmelo Zappulla, קיבלה את האתגר לשלב בחלל האייקוני הזה של העיר, את המשרד של הנהלת הבניין Sayrach Principal Office Club.
השיפוץ המבני היה שמרני בעיקרו והתבסס על שיקום מכבד של כל האלמנטים האדריכליים הקיימים, מצד שני, התפיסה הכוללת מתאפיינת באיזון מוצלח בין סימביוזה לניגודיות. החללים מקיימים אינטראקציה עם הרהיטים האמנותיים, מבססים מערכת יחסים של המשכיות ושינוי בו זמנית.





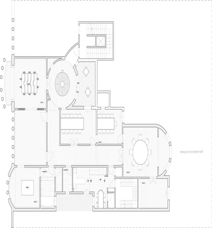
360 מ"ר של המשרד, מחולקים לשמונה אזורים. החל מהכניסה המעגלית, המחוברת לפטיו פנימי עם אלמנטים מודרניסטיים, הגישה לחללים השונים דרך המסדרון הארוך המחבר בין חדרי הישיבות, עוד כמה פינות עבודה, המטבח והשרותים. לאחר חדר הישיבות הגדול האחרון, המשרד חושף מרפסת גדולה באוויר הפתוח, פריבילגיה בלב ברצלונה. חדרי הישיבות הם האזורים החשובים ביותר, המאופיינים ברהיטים שעוצבו במיוחד להקשר שלהם. החומרים מהם נוצרו, חדשניים ומפתיעים: השולחן וכסאות המנגרוב נעשו בהדפסת תלת מימד של פולימר, משולב בתרכובת טבעית בעלת יכולת מינרליזציה הסופגת את ה-CO2 וגורמת לרהיטים לעבוד כמו עצים; שולחן Milky יצוק קוריאן לבן.





בין מורפולוגיות אורגניות וטכנולוגיות חדשות, אומנות ודיגיטל, היסטוריה ועכשוויות, סטודיו External Reference יצר עבור המשרד הראשי של המבנה, אוסף של חדרים בהם יוכלו לחלום, לדמיין וליצור, להיפגש ולייצר יחד סינרגיות אינטלקטואליות חדשות.
צוות עיצוב:
Carmelo Zappulla, External Reference & Chu Uroz
Photographer: Adrià Goula







