בית KO, שתוכנן ועוצב על ידי אדריכלית רוני אלרואי, ממוקם בסביבה עירונית צפופה ומייצג ניסיון לייצר חוויית מגורים מרווחת ופתוחה בתוך מגבלות האתר. הפרויקט עוסק ביצירת איזון בין הצורך בפרטיות לבין הרצון בפתיחות וקשר בין החללים השונים, תוך התייחסות ישירה לתנאים האורבניים הסובבים.

בית KO שוכן בלב מרקם עירוני צפוף, אך מציע חוויית מגורים מפתיעה של מרחב, עומק ואופק פתוח.
האתגר המרכזי בתכנונו היה לייצר תחושת התרחבות בתוך מגרש קומפקטי, תוך התמודדות עם קרבה אינטנסיבית לבינוי הסובב. המענה האדריכלי מתבסס על פתיחוּת מבוקרת והפניית המבט אל כיוונים נטולי הפרעה – מהלך שמאפשר לבית “לנשום” מעבר לגבולותיו הפיזיים.



הבית מתמקם בפינת המגרש ומופנה אל נקודה נטולת שכנים בטווח הראייה. שתי חזיתות מרכזיות – של הסלון והמטבח – נפתחות לכיוון זה ומטשטשות את הגבול בין פנים לחוץ. חלונות רחבי ממדים חושפים שכבות של צמחייה מדורגת: מצמחייה הצמודה לפתחים ועד לעצים המקיפים את הגדר. ריבוי השכבות מייצר עומק חזותי עשיר ובמקביל שומר על פרטיות גם כאשר המפתחים נדיבים במיוחד.
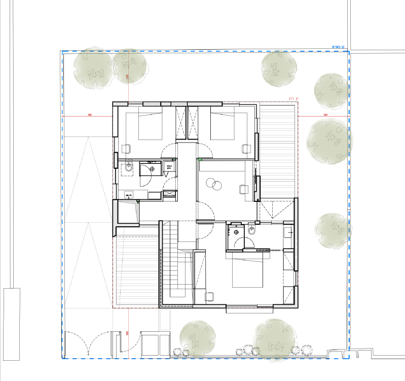
תחושת המרחב מועצמת בסדרת אמצעים אדריכליים – כניסה שקועה המאריכה את מהלך ההגעה מהרחוב פנימה, חלונות פינתיים פנורמיים, תקרות משופעות וחלון “רחוק־מבט” בחדר השינה. כל אלו פועלים יחד ליצירת אשליה של עומק ואופק, החורגת משמעותית ממידות המגרש, ששטחו כ־300 מ"ר בלבד.


דלת הכניסה ממוקמת בעומק המגרש, במהלך המנתק את המפגש הישיר עם הרחוב ומייצר רצף התקרבות מדורג. שביל הגישה הארוך מלווה בלוברים מעץ, המשמשים כאלמנט סינון כפול של אור ומבט, ומייצרים שכבת ביניים בין החוץ הציבורי לבין הפנים הפרטי.


הזכוכית הפינתית מהווה אלמנט מפתח בשפה האדריכלית של הבית ומופיעה בשלושה מוקדים. היא מאפשרת מבט פנורמי כפול־כיוון, המפרק את גבולות הקירות ומרחיב את החלל אל עבר החוץ. בסלון היא מתאפשרת באמצעות הסטת עמוד ממעטפת המבנה, וכך נשמרת פתיחות רציפה אל שתי חזיתות החצר. חלון פינתי נוסף מאיר את גרם המדרגות ומלווה את התנועה האנכית, וחלון שלישי ממוקם בחדר ילדים הפונה אל אזור פתוח ונטול שכנים.




תקרת הקומה הראשונה משופעת בחלקה, מה שמייצר גבהים משתנים וחללים נדיבים יותר באזורים נבחרים, ובכך מעמיק את תחושת המרחב בחדרי הילדים ובפינת המשפחה.
בקומה העליונה ממוקם חלון ממוסגר בחדר השינה של ההורים, המאפשר מבט רחוק ומדויק אל הנוף, תוך שמירה על אינטימיות באמצעות מסגרת ברזל הבולטת ממעטפת המבנה.
בית KO הוא בית קומפקטי בלב סביבה צפופה, אך באמצעות אוסף מהלכים אדריכליים מדויקים הוא מייצר חוויה של מרחב פתוח, עומק ואופק רחוק – החורגים בהרבה מממדיו הפיזיים.
אדריכלית רוני אלרואי
צילום: נימרוד לוי















5 תגובות
חייבים להראות תכניות כשמציגים פרויקט כזה
איך אפשר להציג כתבה כזו בלי תכניות?
עיצוב של פשטות נעימה
פשטות נעימה
שילוב יפה מאד של אסתטיקה מינימליסטית, עם חמימות ביתית (של העץ והצמחיה). עבודה יפה