בית PPA House שתכננו NØ ARQ, הוא דו משפחתי, עם שלושה חדרי שינה וחניה מקורה, הכל בקומה אחת, סביב חצר מרכזית.

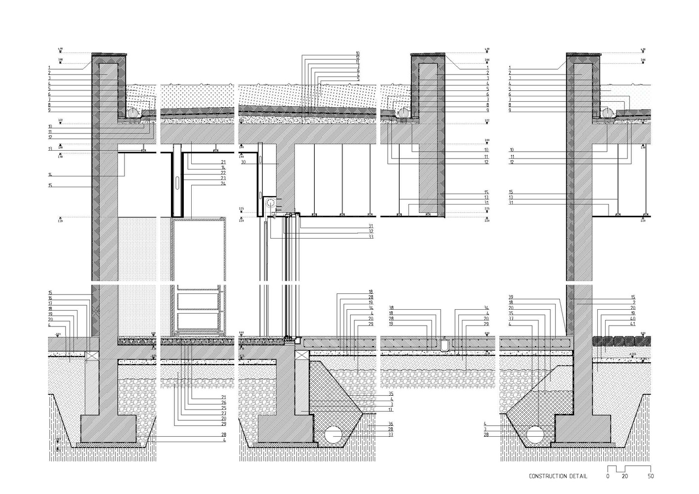
החזיתות מחופות עם מערכת מרוכבת בידוד תרמי חיצוני (ETICS). התקרות עשויות מגבס המסתירות את רשתות התשתית של הבית. החימום הינו אינטגרלי ומשולב בריצוף. רצפות החוץ מורכבות מאבני חלוק העשויות גרניט. את קירות הבית עוטפים אלמנטים טבעיים המכסים ומפחיתים את הנוכחות החזותית של הקירות. צמחייה היא חלק מאסטרטגיית החדרת הנוף, תוך ניצול מינים אנדמיים לטריטוריה שבה היא נמצאת.
Trofa, Portugal
Architects: NØ ARQ
שטח: 384 m²
שנה: 2023
Lead Architects: José Carlos Nunes De Oliveira, Gaia Ferraris
More Specs
Photography: João Morgado























