בלב ההררי של האי אמאמי, יפן, הבעלים-אדריכל של Sakai Architects בנה בית למשפחתו, אשר אינו מחובר לרשת החשמל וייצר בית למשפחה בת ארבע נפשות החייה בנוחות ללא חשמל חיצוני, ללא מיזוג אוויר אבל עם הרבה אוויר צח - בית שיכול להתקיים ללא כל קשר חיצוני.

 

איי אמאמי הם ארכיפלג יפני באיי סאטסונאן, שהם חלק מאיי ריוקיו, ונמצאים מדרום-מערב לקיושו. מבחינה מנהלית, הקבוצה שייכת למחוז קגושימה, יפן.
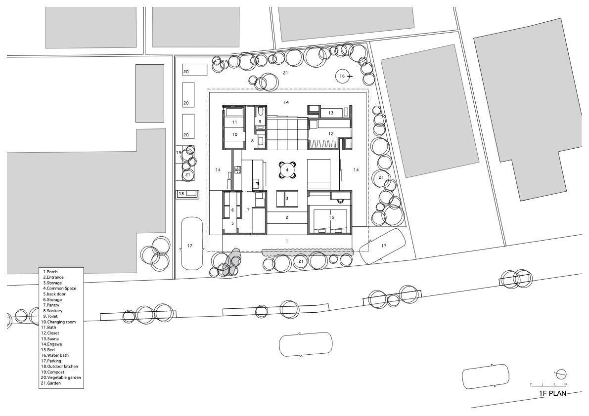
העיצוב של Amami House נשען אל מסורות הבנייה של האי, בהשראת פריסת ה-buntō ההיסטורית של האזור (רב נפחים). הבית מחולק לחמישה מבנים קטנים שלכל אחד יעוד משלו – שינה, רחצה, אחסנה וכו'. השטחים בין כל אחד מהנפחים מאפשרים להם להפוך לחדרי חוץ מוצלים שבהם חיי היומיום נשפכים באופן טבעי אל מרפסות וגינות. זהו מבנה רופף וקליל שמתייחס לכל האתר כאל מרחב מחיה. הגג מהדהד את החתך והגמלון המוכרים של האי, תוך שימוש במתכת גלית, בעוד המבנה כולו יושב מעט מעל הקרקע כדי לאפשר לרוח לנשוב מתחתיו וסביבו. הבית ניראה כמו אב טיפוס נועז לאופן שבו החיים הכפריים יכולים להסתגל לנוכח הצטמקות האוכלוסיה וחוסר הוודאות הסביבתית, מקום שמסתמך לגמרי על עצמו.

 

 

 

אמאמי ידוע בתור "אי קהילתי", שבו הטקסים הקהילתיים תופסים מקום מרכזי בחיים. חגיגות משפחתיות מונות יותר משמונים קרובי משפחה ושכנים, ונמשכות עד מאוחר בלילה. הבית הזה מאפשר זאת, המרחבים הפתוחים והסובלניים מזמינים באופן טבעי אנשים להתאסף ולחלוק זמן יחד, ומטשטשים את ההבחנה בין מגורים פרטיים למקום משותף.

צילום Toshihisa Ishii

 

 

 

 

 

 

 

 

 

 

 

 

 

 

 

 

 

 

 

 

 

 

 

 

 

 

 

 

 

 

 

 

 

 

 

לכל הכתבות בקטגוריית בתים יפים
+כתבות מומלצות
לא רק קירות: המהפכה השקטה של “קירות חכמים” באדריכלות
עיצוב פנים
לא רק קירות: המהפכה השקטה של “קירות חכמים” באדריכלות
  בעידן שבו מבנים “חכמים” נשלטים על ידי מערכות מורכבות, מתפתחת מגמה חדשה –
חלל העבודה החדש בפתח תקווה שמרגיש כמו לאונג’
עיצוב פנים
חלל העבודה החדש בפתח תקווה שמרגיש כמו לאונג’
  החזון שעמד בבסיס התכנון נשען על הרעיון להפוך את סביבת העבודה לחוויית אירוח.
האדריכל שהוכיח שאפשר לבנות חלום – מאדמה בלבד
עיצוב פנים
האדריכל שהוכיח שאפשר לבנות חלום – מאדמה בלבד
  הבית, המשתרע על פני כ־1,645 מ״ר, מכונה על ידי מנדוזה “כלי החרס הגדול

תגובה אחת

כתיבת תגובה

הוספת תגובה חדשה, האימייל לא יוצג באתר*


The reCAPTCHA verification period has expired. Please reload the page.