במרחב הכפרי של פוארטו אסקונדידו שבOaxaca, יצר משרד taller alberto calleja / TAC בית מגורים המשלב בין אדריכלות מקומית, אקלים טרופי ונוכחות טבעית דומיננטית – תוך יצירת דיאלוג מתמשך בין פנים לחוץ.

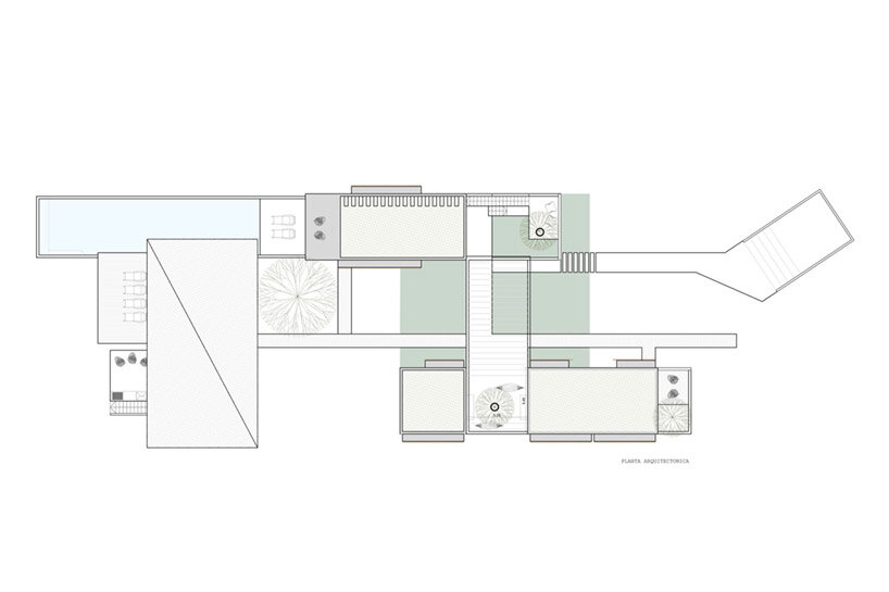
Casa Malandra מתוכנן כשני נפחים מנותקים המוסטים זה מזה, היוצרים יחד טיפולוגיה של בית פטיו טיפוסי. בין המבנים נשמרת הצמחייה הקיימת, אליה נוסף אלמנט מים טבעי המייצר מיקרו־אקלים ייחודי ומקרר את הסביבה. שני הנפחים, הבנויים מקירות בטון וחזיתות עץ, מחוברים באמצעות פרגולה המצלילה את החצר ומסננת את האור. הפתחים הארוכים פונים אל הים וההרים, ומאפשרים זרימת אוויר חופשית וקשר בלתי אמצעי עם הנוף.

חללי השינה ממוקמים בשני המבנים, בעוד שביניהם נוצרים “חללים קסומים” – אזורי מפגש פתוחים בהם הצמחייה המקומית חודרת פנימה ומשמשת כחלק אינטגרלי מהתכנון ומהתנועה בבית. האזור הציבורי מקורה בגג פאלפה משופע, המאפיין את הבנייה המקומית, ולצידו בריכה הממשיכה את חלל המגורים כלפי חוץ ואל הנוף הימי. המבנה שומר על קנה מידה וצורניות התואמים את הסביבה הבנויה, וכך נטמע בה באופן טבעי.
בפן האקולוגי, הפרויקט בולט בגישתו: כל הצמחייה באתר נשמרה, הועברה למשתלה זמנית במהלך הבנייה ולאחר מכן הוחזרה – חלקה אף שולבה על גגות המבנים. מהלך זה לא רק שומר על המערכת האקולוגית המקומית, אלא גם תורם לאוורור טבעי ולוויסות הטמפרטורה, תוך יצירת חוויית מגורים המחוברת עמוקות לסביבה.
Puerto Escondido, Mexico
Architects: TAC Taller Alberto Calleja
Area: 1100 m²
Photographs: Onnis Luque
























