בעיירה Feira Nova שבמדינת פרנמבוקו, ברזיל, תכנן משרד Studio Zé פרויקט אינטימי ומדויק: שיפוץ ביתה של אמו של האדריכל – מבנה מקומי משנות ה־80, שנבנה בשיטות אדובי מסורתיות על ידי תושבי האזור.

 

הבית, כמו רבים מבתי הפריפריה, עבר לאורך השנים תוספות ושינויים שנועדו לענות על צרכים מיידיים של המשפחה. אלא שאלה יצרו מסה בנויה צפופה ולא מתפקדת, עם בעיות של אוורור ותאורה טבעית. עם השנים, ובעקבות בעיות נשימה של הדיירת, התחדדה ההבנה כי נדרש שינוי עמוק – אך כזה שלא ינתק את המבנה מהקשרו המקומי והחברתי.
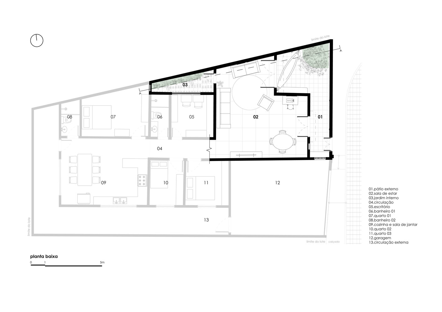
הפרויקט נשען על עקרונות אקלימיים וחומריים פשוטים אך מדויקים: שימוש בחומרים מקומיים, אוורור צולב, והחדרת אור טבעי. בהשראת גישתו של האדריכל ארמנדו דה הולנדה, השיפוץ מתמקד בפתרונות ברי־השגה, המותאמים גם לכוח עבודה מקומי לא מיומן – תוך הדגשת הידע העממי והמסורת הבנויה.

 

 

בשל מגבלות תקציב, ההתערבות התמקדה בחזית ובחללים הציבוריים בלבד, תוך שימור קירות האדובי המקוריים – שגם תרמו לשיפור הבידוד התרמי. אחת הפעולות המרכזיות הייתה הגבהת התקרה באזור מסוים, ויצירת גג דו־שיפועי לא סימטרי, המאפשר אוורור דרך שורת אלמנטים מחוררים (קובוגו) הפונים מערבה.
חללים קטנים ולא מנוצלים נהרסו לטובת סלון רחב, גינה פנימית ומרפסת פתוחה – מהלך שמחזק את תחושת הקהילתיות והאירוח שהייתה טבועה בבית מלכתחילה. דלתות הכניסה שוקמו והוגנו באמצעות לוחות בטון טרומיים המשמשים כבריס־סוליי אופקי זול, ואף הופכים לספסלים במרפסת.
החזית המקורית נשמרה לבקשת הדיירת, אך קיבלה פרשנות חדשה באמצעות דפוס של לבנים קרמיות מחוררות, בהשראת שיטות ייבוש מקומיות. גם בסיס הקיר חופה באריחים שיועדו במקור לתנורי ייצור קמח הקסאווה – מחווה נוספת לחומריות המקומית.
“Mom’s House” הוא לא רק פרויקט שיפוץ, אלא הצעה אדריכלית רחבה יותר: כיצד ניתן לחדש מבנים קיימים תוך כבוד להיסטוריה, לאקלים ולתרבות המקומית. זהו ניסיון להוכיח שאדריכלות טובה אינה תלויה בתקציב גבוה – אלא ברגישות, הבנה והקשבה למקום ולאנשים שחיים בו.

Mom's House
ARCHITECTS
Studio Zé
LEAD ARCHITECT
Zé Vagner
PHOTOGRAPHS
Hélder Santana
AREA
165 m²
YEAR
2025

 

 

 

 

 

 

 

 

 

 

 

 

 

 

לכל הכתבות בקטגוריית בתים יפים
+כתבות מומלצות
מוזיקאית הפכה דירת שכירות בברוקלין, ליצירת אמנות צבעונית אישית
עיצוב פנים
מוזיקאית הפכה דירת שכירות בברוקלין, ליצירת אמנות צבעונית אישית
  הדירה עברה מהפך מלא בתקציב של כ־13.5 אלף דולר בלבד, תוך שימוש בשדרוגי
לבן, אור וטבע: הבית באבן יהודה שמביא את רוח השבועות פנימה
עיצוב פנים
לבן, אור וטבע: הבית באבן יהודה שמביא את רוח השבועות פנימה
  יש בתים שנכנסים אליהם – ומיד מרגישים. לא רק את החלל, אלא את
שישה פרויקטי אדריכלות מסקרנים שייפתחו ביפן ב־2026
עיצוב פנים
שישה פרויקטי אדריכלות מסקרנים שייפתחו ביפן ב־2026
פארק מרחף מול תחנת האקאטה בפוקואוקה אחד הפרויקטים הבולטים הוא The Gateway Park HAKATA

כתיבת תגובה

הוספת תגובה חדשה, האימייל לא יוצג באתר*


The reCAPTCHA verification period has expired. Please reload the page.