בלב הנוף הפראי של מדינת ניו יורק, מוקף יערות ירוקים וגבעות מתגלגלות, ניצב אחד הבתים הייחודיים שנבנו בעשור האחרון. Sleeve House הוא לא רק בית – אלא רעיון אדריכלי יוצא דופן שמאתגר את הדרך שבה אנו חושבים על מרחב, פרטיות וחיבור לטבע.

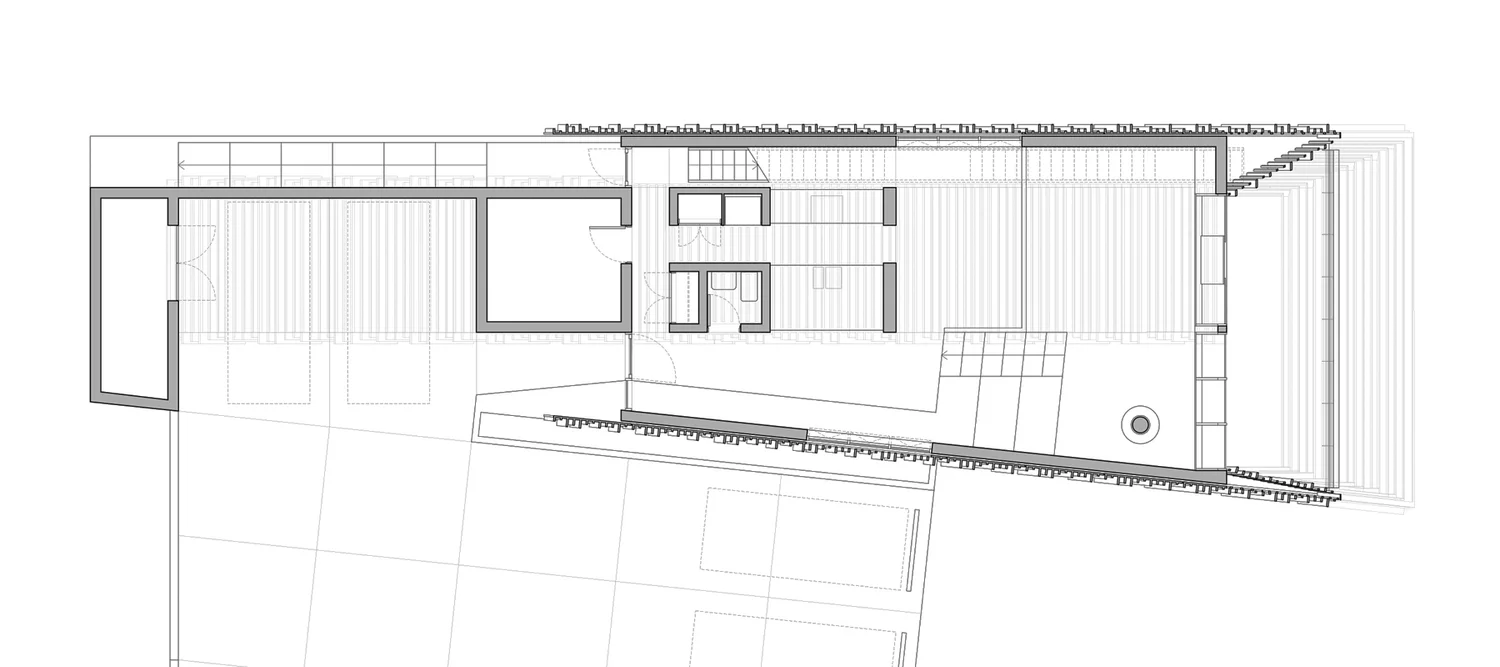
הבית, המשתרע על פני כ-46 דונם באזור Hudson Valley, תוכנן כשני מבנים מוארכים המשתלבים זה בתוך זה – “שרוול בתוך שרוול”. המבנה הפנימי עטוף במעטפת חיצונית גדולה יותר, וכך נוצרים שני עולמות שונים תחת קורת גג אחת.
החלל שבין המעטפת החיצונית לפנימית משמש כאזור הציבורי של הבית: חללים רחבי ידיים עם תקרות גבוהות, בטון חשוף ועץ חרוך, סלון דרמטי עם קיר זכוכית משופע ואח תלוי באוויר. זהו אזור שמרגיש פתוח, מרשים ומחובר לנוף שמסביב.

לעומתו, המבנה הפנימי מציע חוויה אינטימית ורכה יותר – עם שלושה חדרי שינה, חדרי רחצה וחללי מגורים פרטיים, בגימורים ביתיים ונעימים. המעבר בין שני האזורים יוצר תחושה כמעט סיפורית: מעבר בין עולמות שונים, ציבורי ופרטי, דרמטי ושקט.
העיצוב שואב השראה ממבנים חקלאיים מסורתיים של האזור – אסמים וממגורות – אך מעניק להם פרשנות מודרנית. חזית הבית מצופה עץ שעבר תהליך חריכה יפני מסורתי, המעניק לו עמידות גבוהה לצד מראה כהה וטקסטורלי.
מעבר לאסתטיקה, הבית תוכנן להיות בר-קיימא ויעיל אנרגטית: מערכת סולארית מספקת את כל צריכת החשמל, חלונות משולשים מבודדים שומרים על טמפרטורה יציבה, ומערכות אוורור מתקדמות מבטיחות נוחות בכל עונות השנה.

כך, בין הרי הקטסקילס והטקוניק, נוצר בית שמצליח להיות גם פסל בנוף וגם מרחב מחיה נעים. מקום שבו אדריכלות לא רק נראית – אלא מורגשת בכל צעד.
Sleeve House, 2017
Taghkanic, New York
Architect: actual / office, Brooklyn
Design Principal/Project Architect: Adam Dayem
Site Area: 14 acres
Building Area: 2,500 sf


























