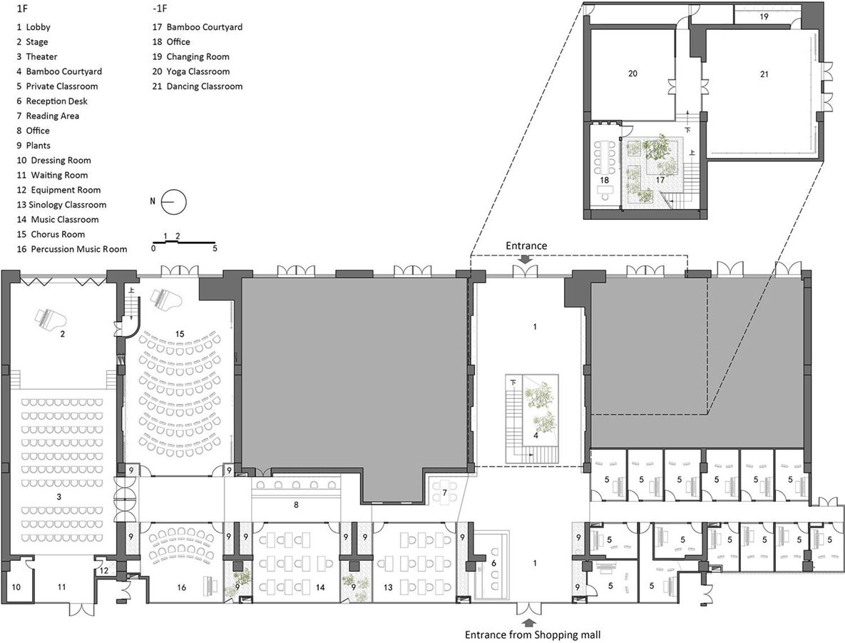
זהו שמו של מותג חינוך ילדים חדש, שמטרתו לחקור ולפתח את הפוטנציאל של הילדים במוסיקה, אמנות ושיפור הישגיהם בכלל. מוסד ההוראה שלהם תוכנן בתוך מרכז קניות בינלאומי Yongli בצפון בייג'ינג. היה צורך בחשיבה עיצובית כיצד ליצור סביבת הוראה מודרנית פתוחה, חופשית וגמישה אשר פורצת את גבולות המבנה הנוקשה ויוצרת תחושה של קירבה בין ילדים לבין המרחב.


הפרויקט משתרע בשטח שבין עמודי תווך של מרכז הקניות בקומה הראשונה, בשטח של כאלף מ"ר עם מרתף ששטחו 300 מ"ר. מסדרון משמש לחיבור הכיתות למרחב הציבורי. כל חללי ההוראה משתרעים אופקית עד לאטריום של מרכז הקניות. גג משופע מהווה את הסיומת של הכיתות במרחב הציבורי. חלל המורים כולו הוא כמו "כפר מקורה" שקוף. הוא מציע לילדים סביבת לימוד, משחק ומוסיקה אינטימית, טבעית ונעימה.



נוף ירוק מרכך את החסימה של הקירות המבניים, כדי ליצור קשר עם טבע כל הזמן. חלק מרצפת האבן של האטריום פורק ובמבוק צומח במקומה. החצר היא גולת הכותרת של נוף הבמבוק. רווחים בין קירות הכיתות משמשים ליצירת אזורי נוף וכך חלל "חיצוני" נוצר במרחב המקורה.
כיתות לימוד מוסיקה מספקות את הדרישות אקוסטיות של בידוד קול וספיגת צלילים. שלוש שכבות חלולות משמשות כקירות כיתות מוסיקה, סורג אלומיניום בצבע עץ משמש כתקרה.










לפני







Han Wenqiang, ARCH STUDIO
נולד בדאליאן, ליאונינג, סין. בעל תואר שני מבית הספר לאדריכלות של CFAA (סין המרכזית האקדמיה לאמנויות יפות), שם הוא מלמד מאז סיום לימודיו. ייסד את ARCH STUDIO בשנת 2010. משלב הוראה ומחקרים, חקר שיטות עבודה מגוונות. באמצעות פרספקטיבה רבה מתערב בפיתוח סביבת מגורים עכשווית עירונית, מציאת איזון נכון בין טבע, היסטוריה ותרבות, יצירת סביבת מרחבית בעלת איכות הומניסטית.כל עבודה שלו כוללת מחקר מעמיק של הצרכים והמגבלות הייחודיות של כל פרויקט.הסטודיו נזכה למוניטין בעולם כאחד מהמשרדים הצעירים הבולטים בסין. עבודותיו זכו בפרסים בינלאומיים רבים, התפרסמו במיטב המגזינים בעולם והוא משתתף בתערוכות בינלאומיות בולטות.
Poly WeDo Education Institution
חברת עיצוב
Arch Studio (www.archstudio.cn)
צוות העיצוב
Han Wen-Qiang, Wang Ying, Li Yun-Tao
מיקום
Chaoyang District, Beijing, China
שטח
1300 ㎡
תאריכי עיצוב
2015.10 – 2016.01
תאריכי בנייה
2015.12 – 2016.03
צילום
Xia Zhi
