בית 10º שתכננו STUDIE באינדונזיה, הוא בית בטון מודרני עכשווי עם עיצוב גיאומטרי ואדריכלות מינימליסטית. במרקם הצפוף של ג'קרטה, הבית בוחן כיצד שינוי גיאומטרי עדין יכול לשנות באופן קיצוני את החוויה המרחבית. המחווה המגדירה את הפרויקט - סיבוב של 10 מעלות של החזית - מכוונת מחדש את הבית אל אור הבוקר והבריזה השוררת, ומגנה עליו מפני שמש מערבית קשה ורעשים עירוניים.
התוצאה היא בית מגורים שמרגיש פתוח אך מוגן, נועז אך רגוע – מקום מפלט עירוני שבו מבנה ואקלים נמצאים בדיאלוג מתמיד.
במקום להרוס את הבית הישן, STUDIE השתמשו בטביעת הרגל הקיימת כמסגרת להתחדשות אדפטיבית. העיצוב מצמצם את כל השכבות המיותרות, ומצמצם את הבית למרכיביו הבסיסיים: מבנה, פרופורציה ואור. החזית החדשה מבטון מעוצב בקרשים מבטאת כוח משיכה וקביעות, בעוד שעץ וזכוכית מספקים חמימות וחדירות. יחסי הגומלין בין מסה לשקיפות מגדירים את הטון האדריכלי: נצחי, מישושי ומותאם עמוקות לסביבתו הטרופית.
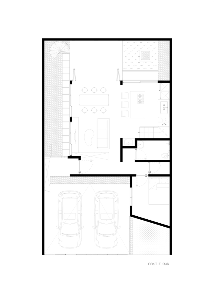
הנטייה של 10 מעלות היא גם קונספטואלית וגם פונקציונלית. היא מכווננת את חדירת אור השמש, משפרת את האוורור הצולב וממסגרת בעדינות נקודות מבט חדשות לעבר הרחוב והגן. על ידי סיבוב פניו, הבית משיג אור, צל ומגורים – בפנים, הבית עובר מהחוץ המונוליטי לפנים שלו ומואר. חצרות מבלטות את התוכנית, ומאפשרות לאוויר ולאור לזרום בחופשיות על פני שתי הקומות. אזורי המגורים, האוכל והמטבח מתמזגים בצורה חלקה לליבה חברתית רציפה אחת, המעוגנת ויזואלית על ידי רצפת בטון מלוטשת ולוחות תקרה מעץ הממתנים את האקוסטיקה והחמימות. מחיצות הזזה מאפשרות לקומת הקרקע להיפתח לחלוטין לכיוון הגינה, בעוד שהקומה העליונה – המכילה חדרי שינה וסטודיו קטן – שומרת על פרטיות באמצעות מסכי עץ עם תריסים. לאורך היום, אור השמש עובר על פני בטון ועץ בעלי מרקם, ומעניקים לפנים דינמיות שקטה.
בית 10º פועל כמערכת טרופית פסיבית. גגות עמוקים, הצללה מחוררת וחללים בגובה כפול מפחיתים את הרווח התרמי תוך עידוד זרימת אוויר. השימוש בחומרים זמינים מקומית – עץ טיק, בטון וטרקוטה – ממזער את ההשפעה הסביבתית תוך חיבור הבית לאומנות אזורית.
פרויקט: בית 10º
אדריכל: STUDIE
מיקום: אינדונזיה, ג'קרטה
שנה: 2024
שטח: 170 מ"ר
צילום: KIE











