בית מגורים בבנגלורו, הודו, למשפחה בת ארבע נפשות. הקונספט העיצובי הדהד את השטח הסלעי של האתר בצורת קיר חזית מפוסל ומעוקל, המוחזק בין לוחות בטון מעוצבים המתייחסים לשכבות גיאולוגיות. הקיר משמש גם כאמצעי מרחבי וגם חווייתי - ומעצב אטמוספרות נפרדות משני הצדדים.
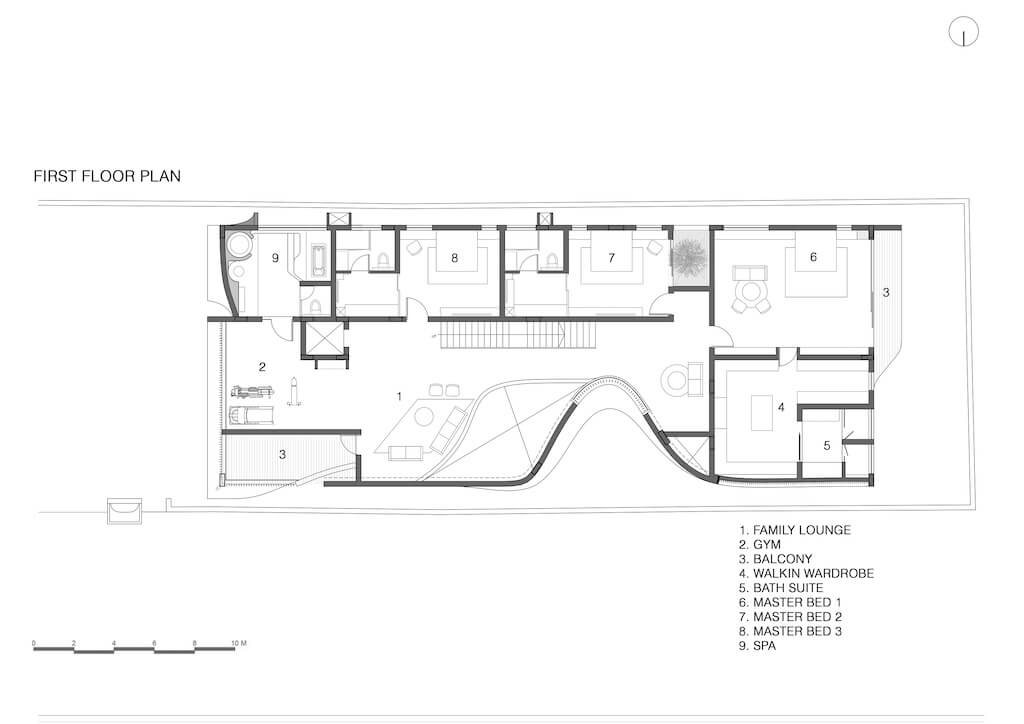
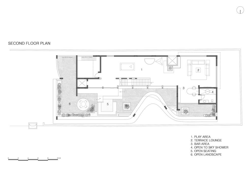
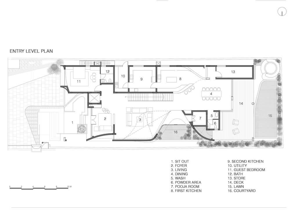
כל האזורים המשותפים – כגון חללי מגורים ופינת אוכל – פונים לכיוון צפון ומערב, פתוחים לנוף. חללים פרטיים כמו המטבח, חדרי השינה וחדרי האמבטיה מוקמו בצד הדרומי לצורך בידוד רב יותר. חזית הבית, הפונה מזרחה, תוכננה עם שטח פתוח מרווח הכולל גינה ושילוב של חצרות יבשות ומרוצפות. כל הקומה השלישית הוקדשה לאירוח. הפריסה כוללת מספר אזורי ישיבה, בר, אזור משחקים, מקומות ישיבה חיצוניים, חצר פתוחה וחלל שירות לתמיכה במפגשים ואירועים.
שם הפרויקט Ale-Mane House
אדריכלים N&RD
מקום RR Nagar, Bengaluru, Karnataka, India
צילום Vinay Shekar
אדריכלים Nikhila Raveendran, Rejin Karthik
שנה 2025





















לכל הכתבות בקטגוריית בתים יפים
+כתבות מומלצות
