לאורך שפת האגם ברובע החדש של Jeonju ניצב HO-UN כמעין ענן שנחת בשקט על קו המים. גג קמור ומתרומם כלפי מעלה מרחף מעל חזית לבנה וטהורה, הקולטת את השתקפות האגם. כך נפגשים רגישות מסורתית קוריאנית ואיפוק עכשווי, והעיר מתרככת אל מול הנוף.

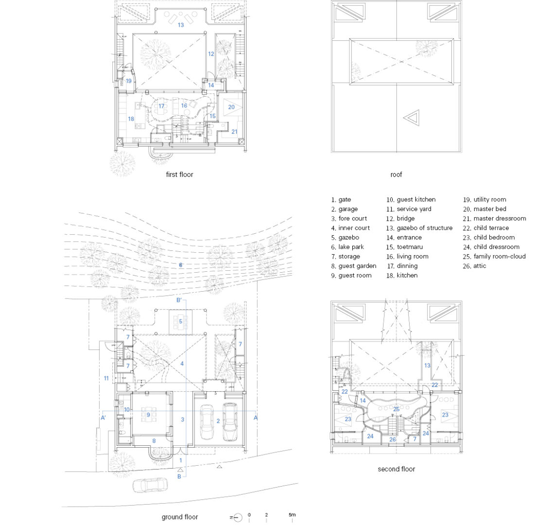
הבית תוכנן עבור זוג צעיר המחובר למסורת הקוריאנית, שביקש מרחב מפלט משגרת היומיום – מבלי להתנתק מהעיר. המגרש ממוקם באזור ביניים, בין המרקם האורבני לבין שלוות האגם, ומשמש סף כפול: מוגן אך פתוח, פרטי אך מקושר לסביבתו.
המחווה האדריכלית הבולטת היא הגג הקמור, השואב השראה מקווי המתאר המתרוממים של גגות מסורתיים בקוריאה. האפריון מזדקר ככנף קלה מעל נפח לבן ומרוסן המונח על פודיום מוגבה. הקומפוזיציה צנועה במסתה אך מדויקת בפרופורציותיה – משלבת רוח מסורתית במסגרת מודרנית ברורה.


במרכז הבית ממוקם חלל פתוח בסגנון numaru, המכונה “Gate of Life”. זהו אזור ביניים בין פנים לחוץ, המשמש כ“viewfinder” אדריכלי: מסנן את המבט אל הנוף ומכניס אותו אל המרחב הפרטי. הוא מאפשר קיום סימולטני של פתיחות ומוגנות, חשיפה ומחסה.
מעבר לו מתגלה חצר תחומה משלושה צדדים – גן מאופק אך חופשי בתחושתו, המשמש כמרחב הנשימה המרכזי של הבית. מעל חדר המשפחה מרחף גג קמור נוסף, היוצר תחושת קלילות התואמת את שם הפרויקט – “ענן מעל האגם”.
באמצעות פרשנות עכשווית לשפה האדריכלית המסורתית של קוריאה, HO-UN מציע מפלט שקט מטלטלות העיר – מושרש בזיכרון תרבותי אך בהיר ומדויק בהווייתו העכשווית.
HO-UN | IROJE KHM Architects
Jeonju, South Korea
Project: HO-UN / Location: Jang-dong, Deokjin-gu, Jeonju-si, Jeollabuk-do, Republic of Korea / Architect: IROJE KHM Architects (HyoMan Kim) / Project team: NaeJung Park, GaYoung Kim, HeeJu Lee / Structural engineer: Eun Structre Co.Ltd. / Mechanical and electrical engineer: Yousungeng / Landscape architect: Openness Studio / Contractor: ENDO construction / Use: private house / Site area: 377.60m² / Bldg. area: 148.37m² / Gross floor area: 383.13m² / Bldg. scale: three stories above ground / Structure: RC / Exterior finishing: exposed concrete / Interior finishing: epoxy paint, vinyl paint / Completion: 2025 / Photograph: ©Sergio Pirrone (courtesy of the architect)




















