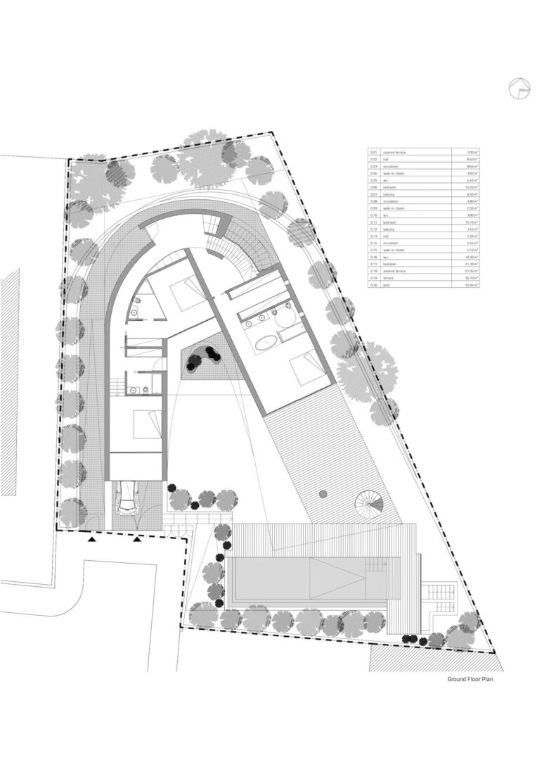
בית המגורים Casa Dorfler, ממוקם במפרץ Meia Praia, Lagos, Portugal - בבניין משותף של מבנים מסורתיים משנות ה-90, אך האדריכלות שלו נועזת ואלגנטית, עם תנועה מעוקלת שהופכת לשני טלסקופים הפונים אל הים, ומדגישה את כל הדרו בנוף העירוני.

התנועה הזורמת כלפי מעלה, מאפשרת קשר סימביוטי בין נפחים ויוצרת פרטיות בין אזורים פנימיים וחיצוניים. הקומה הראשונה כוללת את האזורים החברתיים של הבית כגון הסלון, חדר האוכל והמטבח. נוצר גרם מדרגות חיצוני המחבר את קומת הקרקע ומספק חיבור קל בין האזורים החברתיים והחיצוניים.
אור טבעי הוא בעל עדיפות בפנים הבית, שם החללים הרחבים דרך חלונות הממוקמים בקפידה מאפשרים ליצור גוונים שונים בכל חדר בהתאם לזמן השמש בדרום פורטוגל.

Architecture firm: Vitor Vilhena Arquitectura
Photography: Fernando Guerra | FG+SG
Principal architect: Vitor Vilhena
Design team: Vitor Vilhena Arquitectura
Collaborators: Vitor Vilhena, Fábio Guimarães, Nuno Gonçalves, Dina Moreira, Guilherme Santos, Catarina Augusto
Interior design: Vitor Vilhena Arquitectura
Built area: 600 m²
Site area: 748 m²
Completion year: 2020



















