המעצב הבריטי Terence Woodgate ובת זוגו Paula עזבו את לונדון משאירים הכל מאחוריהם, כדי להתחיל חיים חדשים בג'ירונה, מוקפים בעצים, שלווה ואור. שם הרחק בלב Canet d’Adri, ג'ירונה, Fran Silvestre Arquitectos אדריכלים הפיחו חיים בבית חווה נטוש, והופכים אותו ל-Mas Cadalt, בית מגורים כפרי עכשווי, שבו הם ממשיכים את עבודתם, מוקפים בנוף הכפרי הקטלוני.

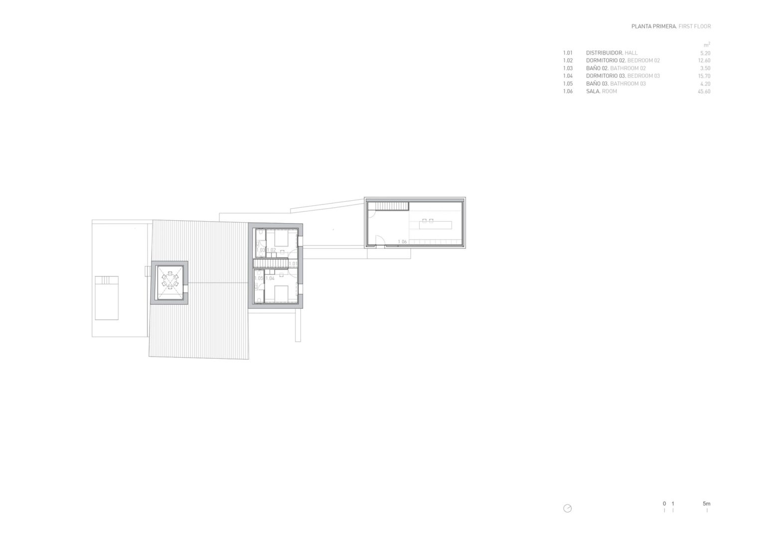
בית החווה הספרדי משמר את מערכת הבנייה המסורתית האופיינית לאזור אמפורדה, תוך שימוש בבנייה מאבן גיר לא סדירה המודבקת בטיט סיד, מחוזקת בפינות ובפתחים עם בלוקי גזית חתוכים דק. לאחר תיקון ושחזור הקירות המקוריים, האדריכלים הניחו שכבת בידוד משעם לשיפור הביצועים התרמיים. האדריכלים מוולנסיה שמרו על הנפח והטיפולוגיה המקוריים של בית החווה, עם שינויים מרחביים מינימליים. המטבח תופס את הגובה המשולש של המגדל הישן, הסלון נפתח אל נופי סיירה דה לה קדאלט, והקומה התחתונה, שבעבר התגודדו בה בעלי חיים, מתפרשת מחדש כאזור רב-תכליתי גמיש. מבנה חוץ סמוך, ששימש בעבר לכלי חקלאות, הפך למוסך עם סטודיו בקומה העליונה, שם מעצב טרנס וודגייט את קולקציות הרהיטים והתאורה שלו.
הבית
עצמאי לחלוטין, מצויד בפאנלים פוטו-וולטאיים, סוללות ומערכת מים אוטונומית המסופקת על ידי בורות מים שעוצבו במיוחד, שאחד מהם הפך לבריכה. ששת הדונם של אדמה שמסביב, המעובדים חלקית, מייצרים מזון לדיירים.

name: Mas Cadalt
architect: Fran Silvestre Arquitect
location: Canet d’Adri, Girona, Spain
built area: 385 square meters
plot area: 675,746 square meters
project team: María Masià, Susana León
interior design: Alfaro Hofmann
photographer: Fernando Guerra

 

 

 

 

 

 

 

 

 

 

 

 

 

 

 

 

 

 

 

 

 

 

 

 

 

 

 

 

 

 

 

 

 

 

 

לכל הכתבות בקטגוריית בתים יפים
+כתבות מומלצות
לבני בנייה שמיוצרות מבגדים ישנים ומשנות את עולם העיצוב והבנייה
עיצוב פנים
לבני בנייה שמיוצרות מבגדים ישנים ומשנות את עולם העיצוב והבנייה
  בעידן שבו תעשיית הבנייה והאופנה נחשבות לשתי תעשיות מזהמות במיוחד, יותר ויותר מעצבים,
מוזיקאית הפכה דירת שכירות בברוקלין, ליצירת אמנות צבעונית אישית
עיצוב פנים
מוזיקאית הפכה דירת שכירות בברוקלין, ליצירת אמנות צבעונית אישית
  הדירה עברה מהפך מלא בתקציב של כ־13.5 אלף דולר בלבד, תוך שימוש בשדרוגי
לבן, אור וטבע: הבית באבן יהודה שמביא את רוח השבועות פנימה
עיצוב פנים
לבן, אור וטבע: הבית באבן יהודה שמביא את רוח השבועות פנימה
  יש בתים שנכנסים אליהם – ומיד מרגישים. לא רק את החלל, אלא את

כתיבת תגובה

הוספת תגובה חדשה, האימייל לא יוצג באתר*


The reCAPTCHA verification period has expired. Please reload the page.