בלב צמחייה טרופית עבותה מעל חופי Playa Hermosa, סמוך לעיירה Uvita, ניצב אחד הפרויקטים האדריכליים המסקרנים של השנים האחרונות: Art Villas Costa Rica – קומפלקס נופש ייחודי שבו אדריכלות, אמנות וטבע מתמזגים לכדי חוויה טוטאלית.

הווילה המרכזית, Art Villa, תוכננה על ידי Refuel Works עם עיצוב פנים של Formafatal, ומהווה את לב הפרויקט שנפרש על שטח של כשני הקטרים בתוך הג׳ונגל של קוסטה ריקה.
כבר במבט ראשון, המבנה מציג ניגוד עוצמתי: מסה מונוליתית של בטון חשוף, גולמי וכמעט ברוטליסטי, המונחת בתוך סביבה רכה, ירוקה וחיה. הבחירה להשאיר את הבטון חשוף אינה מקרית – היא מייצרת דיאלוג ישיר עם הטבע, שבו החומר הקשיח פוגש אור, מים וצמחייה.

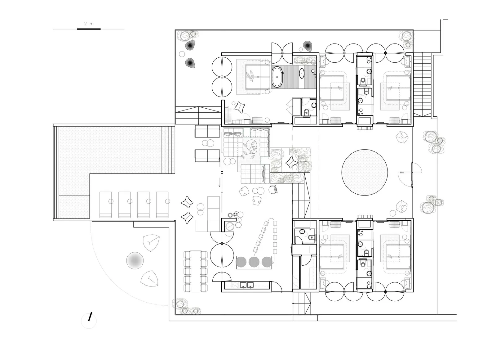
הווילה מתפרשת על פני שני מפלסים וכוללת חמישה חדרי שינה, חללי מגורים רחבים, אזורי פנאי ואף חללים תת־קרקעיים לפעילויות שונות. אך מעבר לפרוגרמה, החוויה האדריכלית כאן היא המרכז: קירות זכוכית רחבים מטשטשים את הגבול בין פנים לחוץ, בעוד שהבריכה והטרסות משתלבות בנוף כאילו היו חלק טבעי ממנו.
עיצוב הפנים שואב השראה הן מהג׳ונגל המקומי והן מעבודתו של Paulo Mendes da Rocha, עם שילוב של חומרים טבעיים כמו עץ טיק, פשתן ומתכת, לצד ריהוט מותאם אישית בעבודת יד. רצפות אריחים מניקרגואה, קירות מצוירים ביד ומוטיבים צבעוניים מוסיפים שכבה של חום ורוך למעטפת הבטון המחוספסת.

גם הנוף אינו רק תפאורה: תכנון הצמחייה משלב מינים מקומיים ואכילים, טרסות מדורגות ומעברים חווייתיים, כך שהגינה עצמה הופכת למערכת חיה המחברת בין המבנים.
Art Villa היא חלק מקונספט רחב יותר של מגורי נופש חווייתיים – מקום המציע לא רק לינה, אלא גם ריטריטים, סדנאות ואירועים, מתוך שאיפה לייצר חיבור עמוק בין אדם, טבע ויצירה.
זהו פרויקט שמדגים כיצד אדריכלות עכשווית יכולה להיות גם נועזת וגם רגישה: מצד אחד מחווה חומרית עוצמתית, ומצד שני מרחב שמאפשר להתמזג עם הסביבה ולהתמסר לקצב אחר של חיים.
Interior Design: Formafatal
Architectural Concept: Refuel works
Photography: BoysPlayNice
Location: Bahia Ballena, Playa Hermosa, Costa Rica
Area: 618 m2
Year: 2019














