אחד הבתים המסקרנים שזכו בפרס RIBA ושמו Ghost House - מוצע כעת למכירה תמורת כ־2.5 מיליון ליש״ט. המבנה, המשלב בטון חשוף, זכוכית ומים, מציג פרשנות עכשווית ודרמטית למגורים תת־קרקעיים.

 

בית “Ghost House”, שתוכנן על ידי משרד BPN Architects במחוז ווריקשייר שבאנגליה, נחשב לאחת הדוגמאות הבולטות לאדריכלות ניסיונית בבריטניה. מאז הושלם בשנת 2018, זכה בפרס RIBA והגיע לרשימת המועמדים הסופית בתחרות “House of the Year”.
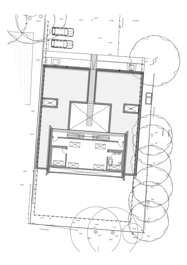
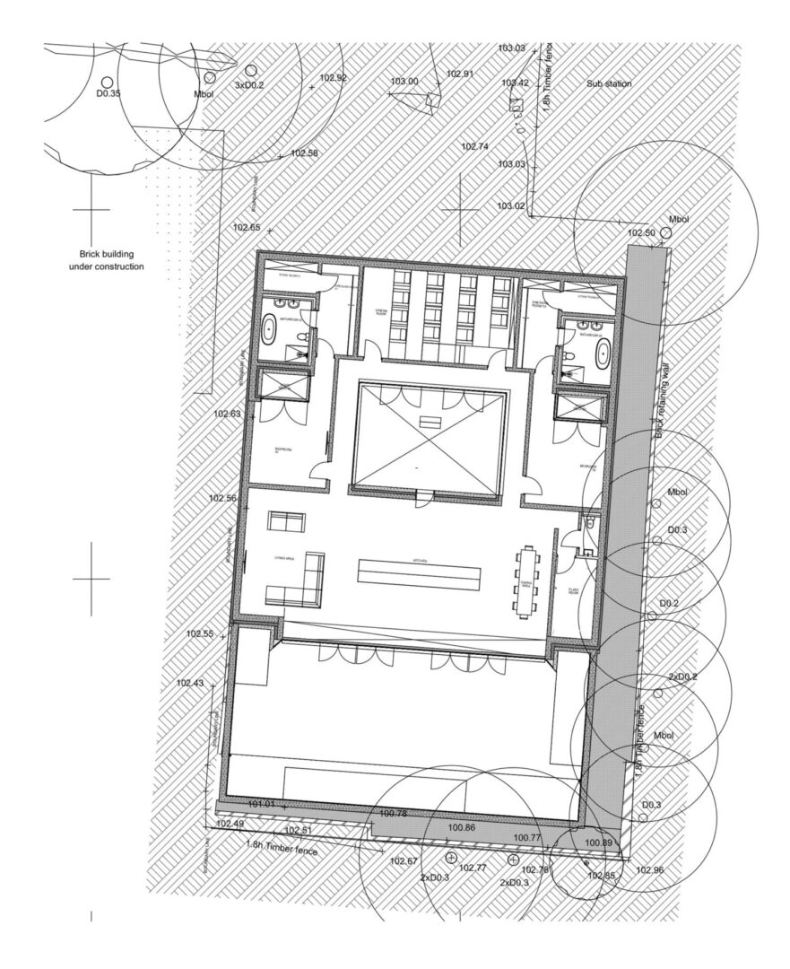
ייחודו של הבית טמון במבנהו החלקי התת־קרקעי: הוא שוכן בתוך גן שקוע של בית כפרי שנהרס, כאשר חלקו העליון מוסתר כמעט לחלוטין באמצעות בריכות השתקפות כהות הממוקמות על גג המפלס התחתון. שביל צר חוצה את המים ומוביל אל גרם מדרגות היורד אל חצר פנימית.
הבית, בהשראת עבודותיו של האדריכל היפני טדאו אנדו, בנוי מבטון יצוק במקום (in-situ) – מהבודדים מסוגו בבריטניה. כל מערכות המבנה – תאורה, שקעים ואף פרטי גמר – שולבו כבר בשלב היציקה, ויוצרים מעטפת אחידה ומונוליתית. למרות המראה הקשיח, בחירת חומרי הגלם מעניקה לחללים תחושת חמימות מפתיעה.
הפנים מאופיין בחללים פתוחים ללא עמודים, קירות זכוכית בגובה כפול המחדירים אור טבעי, ושימוש מדויק בפלדה שחורה מט לצד בטון חשוף. גרמי מדרגות סימטריים מובילים אל אזורי השינה, בעוד שבמרכז הבית חלל מגורים הכולל מטבח אי גדול, פינת אוכל ואזורי ישיבה.
החצר השקועה, המוקפת קירות זכוכית משלושה צדדים, מחזקת את הקשר בין פנים לחוץ, בעוד קירות תמך ובריכות מים עוטפים את המבנה ויוצרים תחושת בידוד ושקט – שממנה נגזר גם שמו, “בית הרפאים”.
כעת, לאחר שנים של הכרה מקצועית, מוצע הנכס למכירה – וממשיך לעורר עניין כמודל אדריכלי שמאתגר את גבולות הבית המסורתי ומגדיר מחדש את היחסים בין חומר, אור ונוף.

Built: 2019
Location: Moreton Paddox, Warwickshire, England
Architect: BPN Architects, Design2e, Webb Yates

 

 

 

 

 

 

 

 

 

 

 

 

 

 

 

 

 

 

לכל הכתבות בקטגוריית בתים יפים
+כתבות מומלצות
איך Art Toys הפכו לפריטי האמנות והעיצוב המבוקשים בעולם
עיצוב פנים
איך Art Toys הפכו לפריטי האמנות והעיצוב המבוקשים בעולם
  בשנים האחרונות הפכו Exclusive Art Toys לאחד התחומים הבולטים והמסקרנים ביותר בעולם האמנות,
שני בתים בורוד וסגול נטמעים בנוף של מיורקה
עיצוב פנים
שני בתים בורוד וסגול נטמעים בנוף של מיורקה
  פרויקט Olive Houses, שתוכנן על ידי האדריכלים Mar Vicens Fuster ו־Ask Anker Aistrup,
ועכשיו הספר: גיורא אקרשטיין, האיש שעיצב את המרחב הציבורי הישראלי
עיצוב פנים
ועכשיו הספר: גיורא אקרשטיין, האיש שעיצב את המרחב הציבורי הישראלי
  הטקס המוערך, להענקת "פרס התעשייה ופרס מפעל חיים", באמצעותו מוקירה מדי שנתיים התאחדות

כתיבת תגובה

הוספת תגובה חדשה, האימייל לא יוצג באתר*


The reCAPTCHA verification period has expired. Please reload the page.