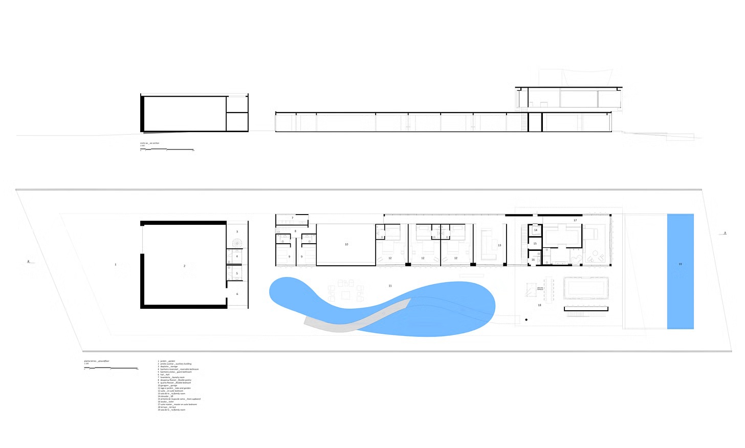
לבית מגורים מפואר בשכונת Pine Tree Drive במיאמי ביץ', יש לגונה פרטית משלו: בריכת שחייה טבעית בה הדיירים יכולים לשחות עם דגים ולטייל על גשר עם שביל המתפתל מעליו.

הלגונה המלאכותית, באורך 30 מטרים וברוחב תשעה מטרים, מסוננת באופן אורגני ומוקפת בצמחייה כדי לספק סביבה טבעית "מטופחת אותנטית" לבית בפלורידה. פטיו עובר לאורך הבריכה, הכולל ספסלים מגולפים מגזעי עצים. הבית פונה לנחל אינדיאן וממוקם כך שיוכל למקסם את הנוף של הנחל. הגישה אליו היא דרך שביל גלי באורך 60 מטרים, העולה מהכביש. עמודי בטון מרימים את השביל מעל המים, בעוד שקורות עץ טיק יוצרות את המעקה. שני החומרים הללו מופיעים גם בכל רחבי פנים הנכס. השביל מספק גישה לקומה העליונה של הבית, שם נמצא חלל המגורים הראשי.
הבית, המוצע כעת למכירה תמורת 29,750,000 דולר, כולל גם שטח שלישי, המספק מקום למגרש כדורסל, אולם למסיבות או אירוח תערוכות אמנות. בנוסף, אזור מזח יכול להכיל יאכטה באורך 27 מטרים.
סטודיו MK27 עיצב את הבית עבור Brodson Construction, בעוד שעיצוב הפנים הושלם על ידי Jader Almeida ו-Artefacto. האדריכל Marcio Kogan עבד כבמאי קולנוע לפני שייסד את הסטודיו שלו. אדריכל נוף: Raymond Jungles.

צילום: Fran Parente

 

 

 

 

 

 

 

 

 

 

 

 

 

 

 

 

 

 

 

 

לכל הכתבות בקטגוריית בתים יפים
+כתבות מומלצות
עולם שלם מתחת לבית: המרתפים של שירלי דן מגדירים מחדש את החלל התת־קרקעי
עיצוב פנים
עולם שלם מתחת לבית: המרתפים של שירלי דן מגדירים מחדש את החלל התת־קרקעי
  במהלך השנים תכננה דן עשרות מרתפים בבתים פרטיים, כאשר בכל אחד מהם נוצר
להחזיר לחיים מבנה היסטורי מבלי למחוק את הזיכרון, החומר והזמן
עיצוב פנים
להחזיר לחיים מבנה היסטורי מבלי למחוק את הזיכרון, החומר והזמן
  יש מבנים שעוברים שיפוץ. ויש מבנים שהופכים למסע חיים. כך בדיוק קרה ב־Oblouková
בין בטון לעץ: משרדו החדש של אדריכל רון שפיגל
עיצוב פנים
בין בטון לעץ: משרדו החדש של אדריכל רון שפיגל
  "הרצון היה לנצל את העובדה שאנחנו בקומה גבוהה, עם נוף המתפרס לכל עבר,"

כתיבת תגובה

הוספת תגובה חדשה, האימייל לא יוצג באתר*


The reCAPTCHA verification period has expired. Please reload the page.